Share this Listing
Location
Key Details
$224,900.00
2 Baths
Apartment
Apartment Unit Single-level
1,087 SQ.FT
1980
Saskatoon
Description
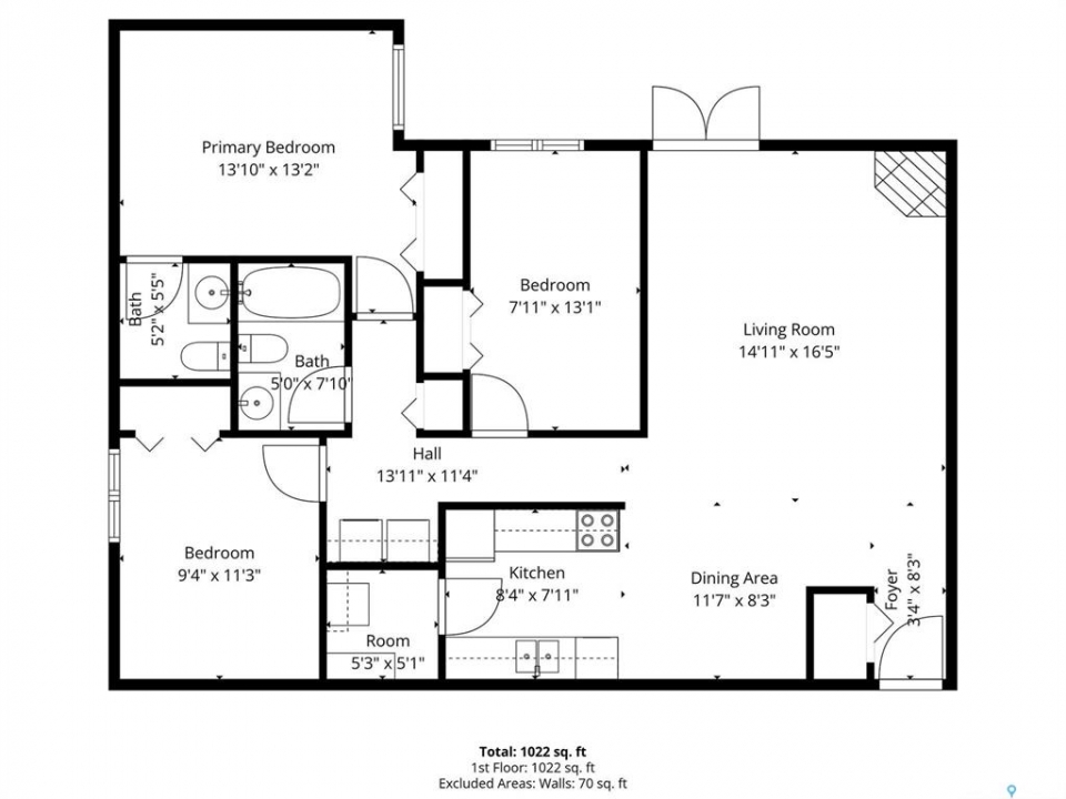
Don't miss out on these fantastic 3-bedroom, 2-bathroom main floor condos in Wildwood! The unbeatable location offers direct access to scenic walking and biking paths, and is just a short walk to the Lakewood Civic Centre, Cliff Wright Library, schools, parks, grocery stores, coffee shops, and public transit. Inside, you'll find a well-designed floor plan featuring three generously sized bedrooms and numerous upgrades throughout. Highlights include triple-pane windows and patio doors, updated kitchen, and a spacious living room. Storage is plentiful with a large pantry, a dedicated in-suite laundry, and an enclosed storage area off the balcony. Step outside to your spacious, east-facing balcony, perfect for relaxing summer evenings or entertaining guests. This unit comes fully equipped with all appliances, and Woodland Crossing offers beautifully updated building exteriors along with a residents' clubhouse featuring a billiards lounge, exercise area, and indoor court. Whether you're a first-time buyer, student, investor, or looking for a place you won't outgrow anytime soon, this is an excellent opportunity.
Listing courtesy of Re/max Saskatoon
More Info
City: Saskatoon
Square Footage: 1087
Year Built: 1980
Style: Apartment Unit Single-level
Type: Low-rise (3 Floors And Under)
Roof: Asphalt Shingles
Outdoor: Balcony
Amenities: Club House, Visitor Parking
Exterior: Siding
Heating: Baseboard
Appliances: Dishwasher Built In,dryer,fridge,stove,washer
Listed By: Re/max Saskatoon