Share this Listing
Location
Key Details
$299,000.00
2 Baths
Detached
Bungalow
1,177 SQ.FT
1955
Swift Current
Description
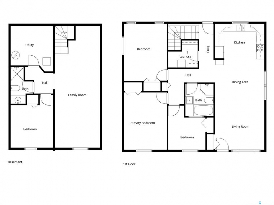
Summer nights at Riverside Park, mornings at Chinook Golf Course - both within walking distance! Welcome home to this well maintained and move-in ready, 4 bedroom & 2 bathroom bungalow with a 400+ sq ft heated garage (with the space to potentially add on, to increase its size) and xeriscape back yard! Featuring spacious bedrooms, a spa-like main floor washroom, main floor laundry and desirable white kitchen cabinetry, this home is ideal for first time home buyers, downsizing buyers, buyers looking to start a family or buyers just simply wanting to move into a finished home. An addition to the original structure with extensive renovations was completed in 2007. This property presents a finished basement, complete with larger windows, a 4th bedroom, a 3-pc washroom, along with the utility/storage room and also offers central A/C, an HE furnace, 100 amp electrical service, the attached yard gazebo in a fenced yard, the 5-pc appliance package & flexible possession. Situated on a 6,500 sq ft lot in a mature and quiet area of the city with front & back off-street parking - please call to schedule your showing with this turnkey gem!
Listing courtesy of Real Broker Sk Ltd.
More Info
City: Swift Current
Square Footage: 1177
Year Built: 1955
Style: Bungalow
Type: House
Roof: Asphalt Shingles
Outdoor: Deck, Fenced, Lawn Front, Patio, Trees/shrubs, Xeriscape
Exterior: Siding,vinyl
Heating: Forced Air, Natural Gas
Features Interior: Air Conditioner (central),gas Bbq Hookup,underground Sprinkler
Appliances: Dishwasher Built In,dryer,fridge,garage Door Opnr/control(s),hood Fan,stove,washer,window Treatment
Land Size: 6500.00
Total Acres: 0.1492
Water Heater: Included
Water Softener: Not Included
Listed By: Real Broker Sk Ltd.