MLS®# SK030683

1817 OSLER STREET

$1,495.00 CAD
Regina
MLS®# SK030683


Location


Key Details

$1,495.00
Office
2,322 SQ.FT
1923
Regina

Description

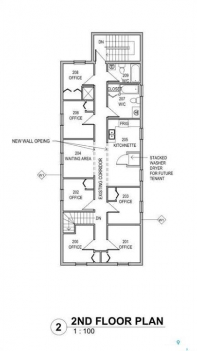
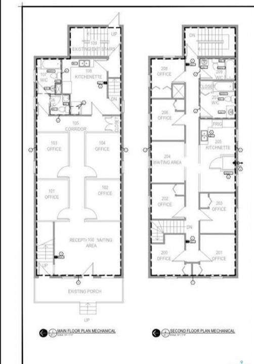
Newly renovated multi-unit building at 1817 Osler St, perfect for offices, studios, or small businesses. Second floor unit is available for rent. The second floor features 6 office room with 2 washrooms, waiting area, laundry area and a shared kitchen/lunch area. This unit includes 2 parking spots, with additional street parking in front. Conveniently located near to downtown, local amenities, restaurants, and public transit.

Listing courtesy of W Real Estate Inc.


More Info

City: Regina
Square Footage: 2322
Year Built: 1923
Type: Office

Heating: Floor Model Furnace
Land Size: 3128.00
Total Acres: 0.0718
Listed By: W Real Estate Inc.