Share this Listing
Location
Key Details
$488,900.00
4 Baths
Detached
2 Storey
1,414 SQ.FT
2017
Regina
Description
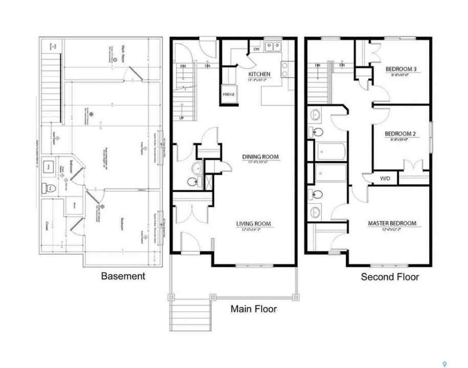
For more information, please click the "More Information" button. Welcome to "The Henry E", a 1,414 square foot, two-storey home on piles built by Glenrose Master Builder circa 2017/2018 with structural warranty protection to November 2029. It features 9-foot ceilings on the main floor; carpet, laminate, vinyl, and tile flooring, premium fixtures, stainless steel appliances, tile back splashes, and Comfortex blinds throughout. It's just steps from parks & walking trails, with schools, Costco, and other shopping only minutes away. The large front entrance and closet area leads to a bright and open dining/living room space with a park view. The corner kitchen facilitates great work flow and a breakfast bar. There is a quartz counter top, gas range, and a large fridge & pantry. The main floor has a 2-piece guest washroom. Upstairs, the spacious master bedroom has a 4-piece en-suite, a generous walk-in closet with wire shelves, and a tv-mount. There are two additional bedrooms, each with a large window. A second 4-piece bathroom and extra large washer/dryer combo with sanitizing features rounds out the top floor. The finished basement has a washer/dryer combo plus Dricore sub-floor panels, an electric fireplace, added insulation, and a suspended ceiling for extra coziness. The secondary rec/guest kitchen sports an induction stove, quartz counter top, built-in dining table/desk, and soft close cupboards. The bedroom is spacious with a large walk-in closet. The 3-piece bathroom has grab bars. Residence has central A/C and vac, a hot water circulation pump, full network wiring, and a generator pass-through. It features a "Unicorn" 20' x 40' / 4-car tandem garage with 9-foot ceilings, two overhead doors, a catch basin, and gas line RI. All grading/landscaping is completed including a vinyl fence with two gates, mature lawns, and a decorative crab apple tree in front.
Listing courtesy of Easy List Realty
More Info
City: Regina
Square Footage: 1414
Year Built: 2017
Style: 2 Storey
Type: House
Roof: Fiberglass Shingles
Outdoor: Deck, Fenced, Lawn Back, Lawn Front, Patio, Trees/shrubs
Exterior: Stone,vinyl
Furnace: Furnace Owned
Heating: Forced Air, Natural Gas
Features Interior: Air Conditioner (central),air Exchanger,air Filter,alarm Sys Not Inc.,heat Recovery Unit,sump Pump,t.v. Mounts
Appliances: Central Vac Attached,central Vac Attachments,dishwasher Built In,dryer,fridge,garage Door Opnr/control(s),hood Fan,microwave,microwave Hood Fan,stove,vac Power Nozzle,washer,window Treatment
Land Size: 3584.00
Total Acres: 0.0823
Water Heater: Included
Water Softener: Included
Listed By: Easy List Realty