MLS®# SK027428

Lot 3 Rural Address

$185,000.00 CAD
Moose Jaw Rm No. 161
MLS®# SK027428


Location


Key Details

$185,000.00
Land
Moose Jaw Rm No. 161

Description

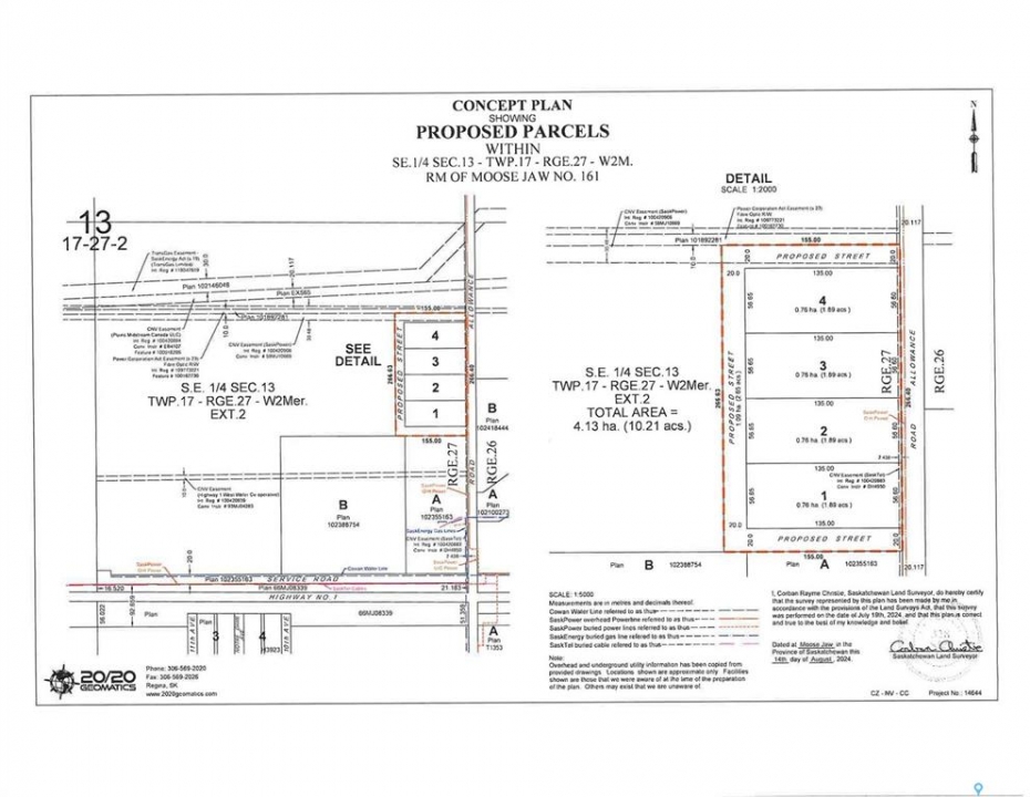
If you're looking for commercial lots to build your business then these lots are available just off Hwy #1. Each lot is 1.89acres and has approval for septic tank with septic field in the future when all 4 lots are sold. 4" gas line and 3 phase power that run to the south property (Norheims). Water lines to the property line. There is a road approved for the west side of lots. Call for more information.

Listing courtesy of Ottawa Real Estate Co. Ltd.


More Info

City: Moose Jaw Rm No. 161
Type: Land
Land Size: 1.89
Sewage Disposal: None

Sloughs: None
Total Acres: 1.8900
Sub Area: Moose Jaw
Listed By: Ottawa Real Estate Co. Ltd.