MLS®# SK022331

A- Whelan ROAD

$519,900.00 CAD
Corman Park Rm No. 344
MLS®# SK022331


Location


Key Details

$519,900.00
2 Baths
Acreage
Bungalow
856 SQ.FT
2025
Corman Park Rm No. 344

Description

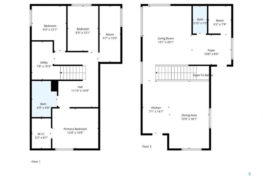
What an Opportunity! Just minutes west of Saskatoon-enjoy peaceful acreage living with city convenience! This newly constructed property sits on 7 acres and offers just over 1,700 sq. ft. of developed space (856 sq. ft. on the main level), featuring 4 beds, two baths, a fully developed basement, and an impressive heated triple detached garage (36' wide with a double overhead door). The home welcomes you home with a charming covered front porch and a functional large foyer complete with a built-in bench and a separate boot room area with floor-to-ceiling wardrobes. The open-concept main floor connects a spacious living room, dining area, and kitchen. The kitchen is a standout, showcasing an abundance of custom lacquer cabinetry, full-height pantry storage, quartz countertops, stainless steel appliances including a microwave hood fan, subway tile backsplash, and an oversized island ideal for large gatherings. The adjacent dining room easily accommodates a large table for the entire family! A convenient two-piece bath completes the main level. An open staircase leads to the bright lower level, which offers four bedrooms (one smaller-ideal as a nursery, office, or den), a spacious family-style 4-piece bathroom, and a large walk-in closet in the primary bedroom. Outside, the detached 36' heated and insulated garage is a dream setup-complete with a workshop area and a double overhead door. The yard is unlandscaped but cleared and ready for your personal design-bring your garden plans and your green thumb. Property is built by a reputable experience Saskatoon builder.

Listing courtesy of Coldwell Banker Signature


More Info

City: Corman Park Rm No. 344
Square Footage: 856
Year Built: 2025
Style: Bungalow
Type: House
Roof: Asphalt Shingles
Outdoor: Trees/shrubs
Bush: Some
Exterior: Siding
Furnace: Furnace Owned
Heating: Forced Air, Natural Gas
Features Interior: Air Exchanger,air Filter,sump Pump

Appliances: Fridge,stove,washer,dryer,dishwasher Built In,garage Door Opnr/control(s),microwave Hood Fan
Land Size: 7.00
Sewage Disposal: Mound
Sloughs: None
Topography: Flat
Total Acres: 7.0000
Water Heater: Included
Sub Area: Saskatoon
Listed By: Coldwell Banker Signature